全国24小时空降平台网站微信免费月抛群2025 ,本人女单身电话微信号加100块约3小时上门人到付款 ,阳谷上门卖身电话50元是多少 ,com.51tea.pincha

186-8973-5688
当前位置:主页 > 技术支持 >

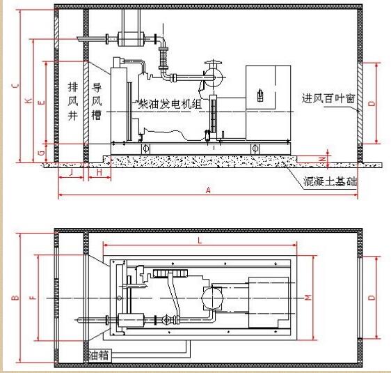
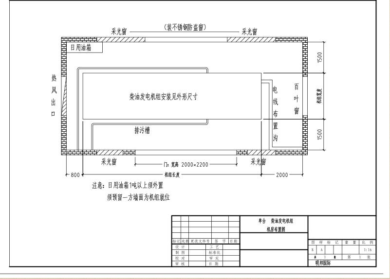
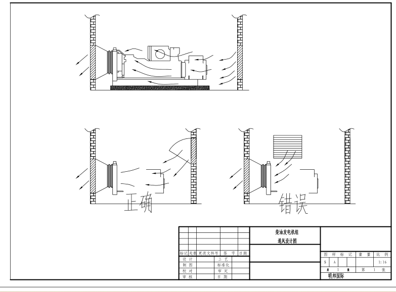
海南上柴柴油发电机组机房安装布置图方案

2020-04-22
来源: 柴油发电机组厂家
海南重康机电设备有限公司成立于2010年,是海南地区最具规模和实力的销售康明斯柴油发电机公司;作为全球电力领导者,康明斯设计、制造和分销多种电力解决方案.
海南重康于制造销售柴油发电机组,发电机组功率为3-3000KW、移动电站为24-300KW、船用应急柴油发电机组24-500KW以及各种进口系列,特殊系列柴油发电机组。
多年来,我们始终坚持产品质量的高标准和严要求,按照价实求生存、质量求发展的企业原则,重合同、守信用、讲诚信,结合先进的工艺技术和测试手段,求精求益求质量,赢得了许多的回头客,深得各界的信赖和支持,是海南省质量管理办公室,海南省技术监督局,多次抽查质量,计量信得过的单位,取得并通过AA资质企业,ISO9001-2000认证企业。
其中,船用柴油发电机组被国家指定为专业生产专业船用发电机组的公司。
按照市场的规则和企业发展的原则,我们以诚信为本促发展,以信誉为基上台阶,求真务实办实业,精益求精抓质量。

在产品的质量和信誉保证上,海南重康生产的柴油发电机组通过了《船用柴油发电机组通用技术条件》GB/T3020-97检验,并按中国船级社《钢质海船入级与建造规范》(2001),整套机组按GB/T3020-97,验收后出具合格证、座台试验报告、并车试验数据、出厂合格证书、船检证书。

海南重康有中国船舶总公司,船级社CCS船检、中国船舶检验局ZC船检,中国海洋渔业总公司ZY渔检,中国人民解放军总后军事交通运输部,军检证书。
海南重康生产的柴油发电机组还远销十多个国家和地区,并广泛受到好评。
海南人将致力未来,在市场的大熔炉中勇于锤炼自已,求真务实办厂、精益求精质量、坚守诚信发展,在社会各界的大力支持和帮助下,力争更大辉煌。
同时,我们也郑重承诺:坚决不让任何一个不合格产品出厂,保证不让任何一个客户受损,严格恪守合同规定,定期与不定期相结合,到用货单位检查产品状况,及时维修,在合同规定的期限内随叫随到,即到即修,确保我公司生产的柴油发电机组运行正常、工作正常;确保用户用得放心。


内容版权声明:除非注明,否则皆为海南康明斯发电机组原创文章。

转载注明出处:http://www.ohtcw.cn/jishuzhichi/83.html