全国24小时空降平台网站微信免费月抛群2025 ,本人女单身电话微信号加100块约3小时上门人到付款 ,阳谷上门卖身电话50元是多少 ,com.51tea.pincha

186-8973-5688
当前位置:主页 > 新闻中心 >

分享上柴柴油发电机组安装指南

2019-08-01
来源: 柴油发电机组厂家

上柴柴油发电机组安装与固定

安装一个柴油发电机组要考虑的因素有:
地板的负重、通道及维修保养的位置、震动、通风、排烟管连接及隔热、降噪、燃油箱大小及位置,并以当地的或国家的各项规章制度及条例为准。
 
上柴柴油发电机组柴油发电机组安装的位置
柴油发电机组可以装在地下室、地面或屋顶。通?;坑τ凶愎坏目占淙每掌魍?,而发动机和发电机四周也应留有足够的工作空间。
 
1.1.3柴油发电机组的固定
所有柴油发电机组已用钢性底座将整机装在上面,并已准确地校好了交流发电机和发动机,发动机和发电机与底座之间已有专用减震垫,因而只需要安装在预定的位置上,并水平放好(图-1)。
 

1.2上柴柴油发电机组通风

发动机的运转及交流发电机的工作把热散布在机房里,并提高了房间的温度。因此,柴油发电机组房间的通风是必须的。这样才能有效地控制机房的升温,并提供给发电机组以清凉、新鲜的空气。
 
1.2.1上柴柴油发电机组循环
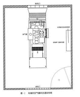
良好的通风需要足够的空气流入和流出,并在房间内自由循环。因此,机房必须足够大以便让空气自由循环,这样机房内的空气温度就可以保持均衡,并且没有滞留气焰。(如图-2)
 
1.2.2上柴柴油发电机组通风口
为了让新鲜空气进入机房,应有开向户外的进风口或者通向建筑物另一部分的通风口,以便让足够的空气进入。在较小机房可用通风管把空气抽入房间或直接地送到柴油发电机组的进气口。此外,应有一些通向墙外的排风口,以便热气从该口排出。(如图-2,图-3)
无论进风和排风都应有挡风雨的百叶窗。这些窗可以是固定的,但最好在气温低时能调节。对那些自动启动的柴油发电机组,百叶窗最好也能自动操作,使它们在柴油发动机组启动时立即打开。
 
1.2.3上柴柴油发电机组进风通风口大小
在计算进风通风口的大小之前,必须考虑到散热器冷却空气流量和柴油发电机组在额定负载时风扇取得的静态压力。标准的机房安装,散发的热量已计算在散热器空气流量中。对那些把散热器安装在远处的机房,机房冷却空气流量是由发动机、交流发电机和排气系统任何部分向周围空气散发的总热量来计算的。
柴油发电机组在额定功率操作时,发动机和交流发电机冷却空气的需求量在技术文件中已说明。排气系统的散热取决于在房间内管路的长度及使用的隔热材料,所以在计算房间的空气流量时,这些热源散出的热可以忽略不计。
在决定了进入房间的空气流量之后,可以计算通风入口在外墙应开多大。通风入口必须足够大以便反气流阻力不会超过0.4inH2O??掌饲迤?、帘幕和百叶窗的阻力值可以从这些设备的制造厂家取得。(如图-4)

 
1.2.4上柴柴油发电机组排风通风口的尺寸
当发动机和机房是由一台固定在发电机组上的散热器来冷却时,排风通风口必须大到足以让所有在房间流通的空气排出,不包括相对少量的进入发动机入口的空气。
 

1.3上柴柴油发电机组发动机的排烟

发动机排出的气体必须由一个正确设计的排放系统直接排出户外,该系统应不会对发动机产生过多的反压力。在户外或户内,排烟管应装上一个合适的排烟消音器,户内的排烟系统的部件应包上隔热材料以减少热量的散发。管的外端应切成和水平成60°角或者装上防雨水或雪的排气系统。如果建筑物装有烟雾探测系统,排烟出口应安装在不会启动烟雾报警器的地方。


内容版权声明:除非注明,否则皆为海南康明斯发电机组原创文章。

转载注明出处:http://www.ohtcw.cn/xinwenzhongxin/1972.html